площадью 496,00 м2, по цене 32000000 по адресу Всеволожский район - деревня Энколово, Хуторская улица,6а

Цена 32 000 000 р.
Адрес Всеволожский район, деревня Энколово, Хуторская улица,6а
Площадь помещения 496 м2
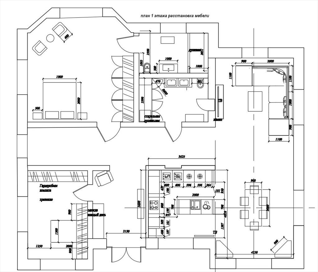
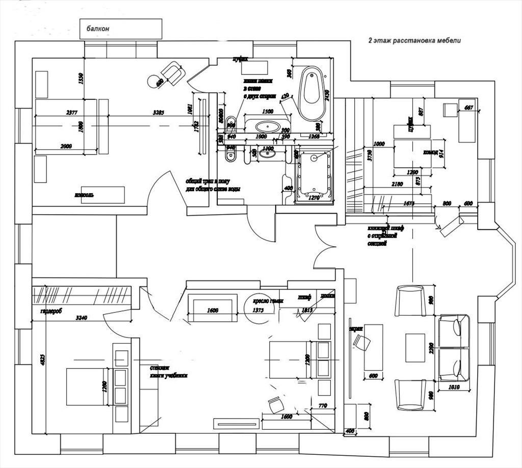
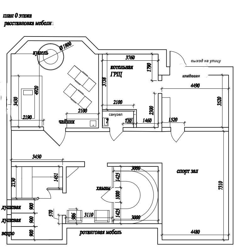
Продается просторное коммерческое здание 496 м2 на участке 39,7 соток! Идеально под хостел, мини-отель, детсад, пансионат, ЦДО или офис-склад. Уникальное предложение! Продается современное двухэтажное коммерческое здание площадью 496 кв.м. на собственной территории 39,7 СОТОК. Здание готово к запуску вашего бизнеса! Идеально подходит для: Хостел / Мини-отель / Гостевой дом Детский сад / Центр дополнительного образования Пансионат для пожилых людей Офис-склад сетевых торговых компаний Ключевые преимущества: 1. ОТЛИЧНАЯ ЛОКАЦИЯ: Всего 20 минут от метро Девяткино. 2.5 км от станции Кавголово. Остановка общественного транспорта в пешей доступности. Растущий район Энколово с развитой инфраструктурой. 2. ЗДАНИЕ И УЧАСТОК: Два этажа + полноценный высокий цоколь (потолки 3.4 м) + чердак (потенциал +100 м2). Качественные материалы: газобетон, облицованный кирпичом, окна ПВХ, крыша из мягкой черепицы. Участок 39,7 соток, ровный, полностью огорожен забором. Отдельные входы на все уровни. 3. ГОТОВЫЕ КОММУНИКАЦИИ (Огромный плюс!): Газ: Заведен в дом. Установлено 2 газовых котла в котельной. Вода: Собственная скважина (26 м, дебет 2 м/час). Электричество: Выделенная мощность 60 кВт. Канализация: Вывод в дальний угол участка + кольца на 8-10 м. Требуется только установка станции очистки (например, Астра 5). Центральное отопление от газовых котлов. 4. ПЛАНИРОВКА: Цоколь: Хамам, Котельная, Кладовая, 2 Душевые, Прачечная, Спортзал, Комната отдыха. 1 этаж: Большая гостиная, Кухня, Гардеробная, Спальня, Санузел (плитка закуплена). 2 этаж: Балкон, 3 Спальни, Гардеробная, Гостиная, 2 Санузла (с ванной и гидромассажем). РАЗВИТАЯ ИНФРАСТРУКТУРА РАЙОНА: Частная школа. Современная конно-спортивная школа с зоной отдыха, рестораном и банкетным залом. Магазины "Мини Лента" и "Дикси" (круглосуточно). В 2.5 км - крупный пос. Кузьмолово со всей инфраструктурой (школа, детсад, соцобъекты). УСЛОВИЯ ОПЛАТЫ: Возможна ипотека! Рассрочка! БЕСПЛАТНОЕ юридическое сопровождение сделки! Не упустите шанс! Это готовое решение для вашего прибыльного бизнеса в перспективном районе. Звоните СЕГОДНЯ, чтобы записаться на просмотр! Здание может быть продано очень быстро!
Объявление № 23242234
Дата подачи:
2 октября 2025 г. 15:25
Дата обновления:
2 октября 2025 г. 4:00
Просмотров 14 Хотите продать быстрее?

Продавец
Евгения Козлова
Показать номер телефона
Пожаловаться
Комментарии:
Добавить